+48 789 563 579
Zarządzanie najmemNieruchomości komercyjne

Lublin Czuby Kaczeńcowa dwa pokoje

Lublin

589 145 PLN

Cena 589 145 PLN
Cena za m² 10 900 PLN/m²
Powierzchnia 54.05 m²
Liczba pokoi 2
Piętro 1
Numer oferty 390/16891/OMS
Typ budynku: Mieszkalno-biurowy
Rynek: Pierwotny
Typ mieszkania: Jednopoziomowe
Lokalizacja: ul. Kaczeńcowa, Lublin
Powierzchnia: 54.05 m²
Liczba pokoi: 2
Liczba łazienek: 1
Piętro: 1 z 5
Rok budowy: 2026
Winda: Tak
Chciałbym Państwu zaoferować nowe mieszkanie w bardzo atrakcyjnej lokalizacji.
    Lublin    CZUBY   ul: Kaczeńcowa.

 Stan deweloperski, odbiór mieszkania wrzesień  2026r

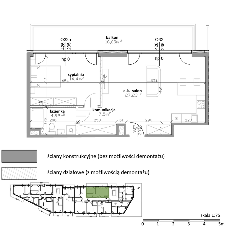
MIESZKANIE:

Kawalerka 54,05 m2 
- salon z aneksem 27.23 m2
- komunikacja 7,5 m2
- łazienka 4,92 m2
- sypialnia 14,4 m2
- do mieszkania przynależy balkon 16,09 m2

Atuty:
- doskonała lokalizacja
- nieruchomości znajduje się na I piętrze w budynku 5 piętrowym
- stan deweloperski 
  * będą Państwo mieli możliwość wykończenia mieszkania pod siebie!!!
  * mieszkanie zaprojektowane z myślą aby spełnić wszystkie oczekiwania klienta
- wystawa okienna na zachód 
- funkcjonalność

LOKALIZACJA
Inwestycja
 usytuowana w  bardzo atrakcyjnej lokalizacji, wśród licznej zieleni  w samym sercu osiedla z lat 90tych.
Bogata infrastruktura, szybki dojazd do centrum jak również na wylotówkę z miasta.
w okolicy znajdują się :

- liczne sklepy, Biedronka, Stokrotka, Lidl, centrum handlowe Orkana
- piekarnia Orlikowski po sąsiedzku 
- liczne restauracje jak Stół i Wół w okolicy 
- Spa Orkana 
- Luxmed 
- szpital 500m
- szkoła podstawowa 
- przedszkole 
- kościół 
- klub osiedlowy 
- liczne tereny zielone, do Rezerwatu Stary Gaj 700m2
- ścieżka rowerowa prowadząca nad sam zalew 
- skatepark 
- boiska do gry w piłkę 
- place zabaw

FINANSE:

- mieszkanie 589 145 
- miejsce parkingowe w garażu podziemnym dodatkowo płatne 50 000zł


POSIADAMY Również inne mieszkania  do sprzedaży w tej lokalizacji  od:

- 31m2 do 70m2
- z ogródkami i tarasami

Zapraszamy także do naszego oddziału w Lublinie znajdującego się przy ulicy Juliusza Ligonia 1

Arkadiusz Staniak
Rewers Nieruchomości
Tel. 793-563-570
e-mail.a.staniak@rewersnieruchomosci.pl


Skontaktuj się z agentem

Te nieruchomości mogą Cię zainteresować

Main Property Image

Szerokie - dwupoziomowe mieszkanie z ogrodem

Lublin

1 340 000 PLN

10 151,52 PLN/m²

Main Property Image

Kawalerka po remoncie, ul. Narutowicza, Lublin

Lublin

369 000 PLN

11 104,42 PLN/m²

Main Property Image

3-pokojowe mieszkanie na sprzedaż Dominów, Lublin

Dominów

494 628 PLN

9 400,00 PLN/m²

Bezpłatna konsultacja finansowa
chevron-down