+48 789 563 579
Zarządzanie najmemNieruchomości komercyjne

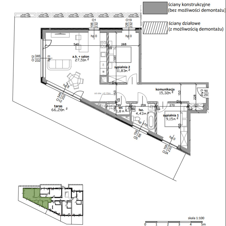
Apartament 3-pokojowy 70,04 m2 + taras 66,26 m2

Lublin

763 436 PLN

Cena 763 436 PLN
Cena za m² 10 900 PLN/m²
Powierzchnia 70.04 m²
Liczba pokoi 3
Numer oferty 388/16891/OMS
Typ budynku: Apartamentowo-handlowy
Rynek: Pierwotny
Typ mieszkania: Apartament, Jednopoziomowe
Lokalizacja: ul. Kaczeńcowa, Lublin
Powierzchnia: 70.04 m²
Liczba pokoi: 3
Liczba łazienek: 1
Piętro: parter z 5
Rok budowy: 2026
Winda: Tak
Na sprzedaż 3-pokojowy funkcjonalny apartament 70,04 m² z tarasem 66,26m², usytułowany na nowoczesnym osiedlu w niezwykle atrakcyjnej części miasta: Lublin CZUBY, ul. Kaczeńcowa. Inwestycja w trakcie budowy, oddanie IIIQ 2026 roku.  Stan deweloperski pozwala na wykończenie mieszkania zgodnie z własnym gustem i potrzebami - idealna baza do stworzenia wnętrza dokładnie takiego, o jakim marzysz. Usytuowanie nieruchomości sprawia, że jest to doskonała propozycja dla osób szukających własnego lokum, jak i dla inwestorów. Dla osób ceniących sobie kontakt z naturą, dodatkowym niewątpliwym atutem jest również pobliski wąwóz.

Kluczowe informacje:
- Powierzchnia: 70,04 m²,
- Rynek: pierwotny
- Stan deweloperski (odbiór IIIQ 2026),
- Piętro 0/5
- Ogrzewanie: CO miejskie
- Okna: PCV
- Rozkład: 
  • Przedpokój (15,32 m²),
  • Sypialnia 1 (9,15 m²),
  • Sypialnia 2 (11,83 m²),
  • Salon z aneksem kuchennym ( 27,51 m²) i wyjściem na taras (66, 26m²),
  • Łazienka (4,43 m²),
  • WC (1,8 m²)
  • Taras (66,26 m²)


Istnieje możliwość dokupienia miejsca parkingowe w garażu podziemnym ( 50 000 zł).


Lokalizacja apartamentu łączy komfort z doskonałą komunikacją - dogodny dojazd do centrum Lublina, bliskość głównych tras i przystanków komunikacji miejskiej, a z drugiej strony bliskość wąwozu, ścieżek spacerowych oraz innych miejsc sprzyjających odpoczynkowi na świeżym powietrzu sprawia, że jest to osiedle do życia, nie tylko "na chwilę".
Dla osób ceniących wygodę codzienności - sklepy, usługi, tereny rekreacyjne - można tu funkcjonować bez codziennych dojazdów przez całe miasto. 

W okolicy znajdują się, m.in. :
  • place zabaw,
  • boisko,
  • sklepy spożywcze: Stokrotka, Biedronka itp.
  • Spa Orkana,
  • Galeria Orkana
  • Apteka,
  • Szkoła,
  • Przedszkole i inne

Cena: 763 436 zł

Posiadamy w sprzedaży również inne mieszkania w tej lokalizacji:
mieszkania od 31 m² do 70 m²


Jeżeli cenisz komfort i dobrą lokalizację, a także szukasz miejsca, które może stać się prawdziwym domem -  ta oferta spełni Twoje oczekiwania. 
Zapraszam do kontaktu. 

Maja Kosmala
REWERS Nieruchomości
Tel.: 791 563 572
e-mail: m.kosmala@rewersnieruchomosci.pl
Adres: Juliusza Ligonia 1, 20-805 Lublin

Skontaktuj się z agentem

Te nieruchomości mogą Cię zainteresować

Main Property Image

3 pokojowe mieszkanie na sprzedaż Rzeszów

Rzeszów

650 000 PLN

7 057,55 PLN/m²

Main Property Image

Ponikwoda Rumiankowe zacisze z ogródkiem

Lublin

413 336 PLN

12 100,00 PLN/m²

Main Property Image

3-pokojowe mieszkanie na sprzedaż Dominów, Lublin

Dominów

440 412 PLN

8 400,00 PLN/m²

Bezpłatna konsultacja finansowa
chevron-down